







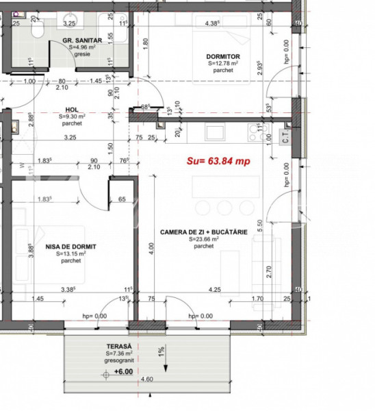
Apartament cu 3 camere de vânzare în Apahida, zona străzii Libertății. Suprafața utilă este de 63,84 mp. Compartimentarea este eficientă și cuprinde hol, living cu bucătărie open-space, 2 dormitoare, o baie și balcon de 7,36 mp.
Apartamentul se vinde semifinisat. Este dotat cu centrală termică proprie, încălzire în pardoseală, geamuri termopan și ușă metalică la intrare. Baia este finisată cu gresie și faianță.
Blocul este nou, recent finalizat. Locația este liniștită, aproape de oraș și de mijloacele de transport în comun. Este o alegere excelentă pentru locuință proprie sau investiție.
📞 Contactează-ne pentru mai multe detalii sau pentru a programa o vizionare.
💰 La prețul afișat se adaugă TVA.