



Acest apartament modern face parte dintr-un ansamblu rezidențial nou, aflat într-un stadiu avansat de execuție – blocul este finalizat în proporție de 95%. Construcția este realizată conform standardului nZEB (nearly Zero Energy Building), ceea ce înseamnă un consum energetic redus, eficiență termică superioară și costuri minime de întreținere.
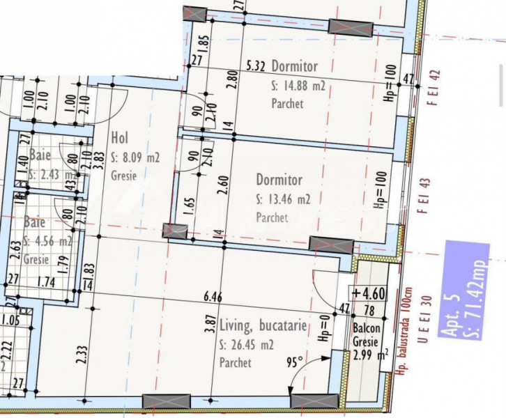
Locuința are o suprafață utilă de 71,42 mp, la care se adaugă un balcon de 2,99 mp, ideal pentru momente de relaxare.
Compartimentarea este practică și bine proporționată:
Hol de acces spațios, cu posibilități de amenajare pentru depozitare;
Living generos cu bucătărie open-space, oferind o zonă de zi luminoasă și primitoare;
Două dormitoare confortabile, cu suprafețe echilibrate;
Două băi, dintre care una prevăzută cu fereastră, pentru aerisire naturală;
Balcon accesibil din living, perfect pentru relaxare.
Apartamentul se predă semifinisat, oferind viitorului proprietar libertatea de a-și personaliza spațiul după propriile gusturi și nevoi.